
XGZ-1200铸石砌板散料刮板输送机
05 XGZ12-00刮板输送机总图 A1.pdf 08 XGZ12-91
N-TGD250gao效果钢丝胶带斗式提升机
N-TGD250总图.pdf 40H8-21-1底座.pdf 40H8-25-1透盖
N-TGD315gao效果钢丝胶带斗式提升机
N-TGD315斗式提升机安装总图.pdf 1分料器.
N-TGD400gao效果钢丝胶带斗式提升机
槽钢I.pdf 槽钢II.pdf 侧板1.0.pdf 侧板.pdf 侧
N-TGD500gao效果钢丝胶带斗式提升机
N-TGD500-45.6m总图.pdf NGTD500料斗.pdf N-TGD500
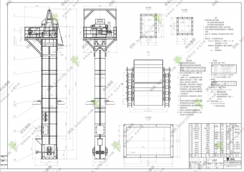
N-TGD630斗式提升机
N-TGD630 2机壳连接法兰.pdf N-TGD630U板.pdf N
N-TGD800gao效果钢丝胶带斗式提升机
N-TGD800总.pdf N-TGD800 3底板.pdf N-TGD800 SN230座
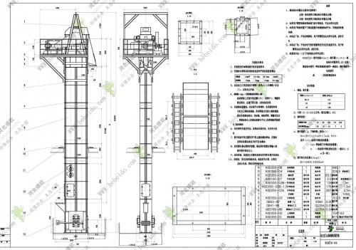
N-TGD1000gao效果钢丝胶带斗式提升机
N-TGD1000 总图.pdf N-TGD800中间机壳(防偏).p
NE50
NSE050-00总装图.pdf NSE050-01-02链轮罩.pdf NS
NE300
NSE300-00 总装图.pdf NSE300-01-300栏杆 .pdf NS
NE500
NSE500高速板链斗式提升机总图.pdf NSE500-
板链输送线BL200
链板线1235总装图-模型.pdf BL200.1-3调整座
BL12510自动除铁式链板喂料机
BL12510.00自动除铁式链板喂料机总装图.p
MS25
MS25020齿圈.pdf MS25 020轮毂.pdf MS25 020头轮
SCD500
SCD500-05-00链 条 总 装 图.pdf FU410-05-01销轴
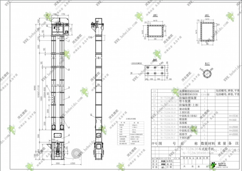
SCD630
SCD630熟料斗式输送机 总图熟料斗式输送机
SCD800
SCD800熟料斗式输送机总图.pdf SCD800.1.1头部
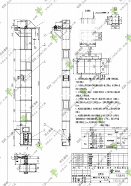
TB315
TB315.1.00斗式提升机总图.pdf HL31.1.1-3固定板