
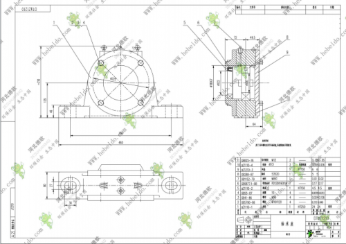
DT轴承座
Z1210_3闷盖.pdf Z1210轴 承 座.pdf Z1212_3闷盖
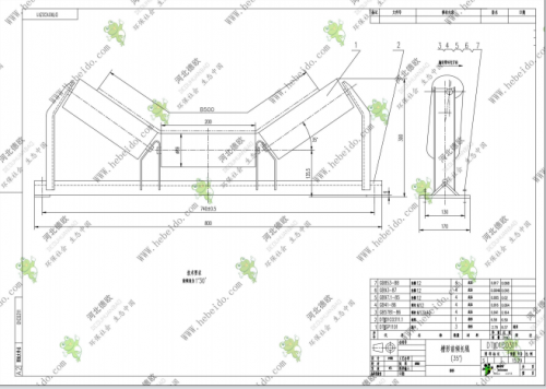
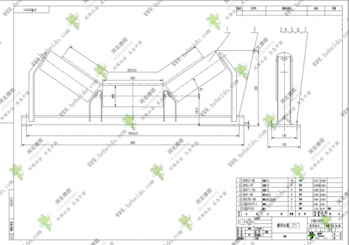
DT16槽型托辊35°
_1-1中支柱 .pdf _1-1中支柱.pdf 01C0111槽形托
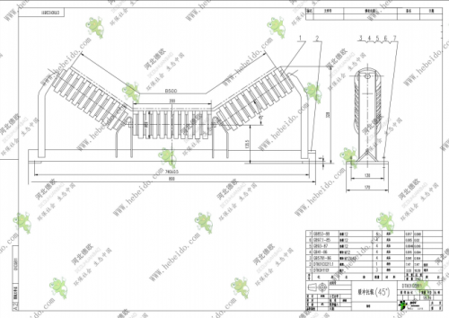
DT17槽型托辊45°
_1-1中支柱 .pdf _1-2边支柱.pdf 01C0211槽形托
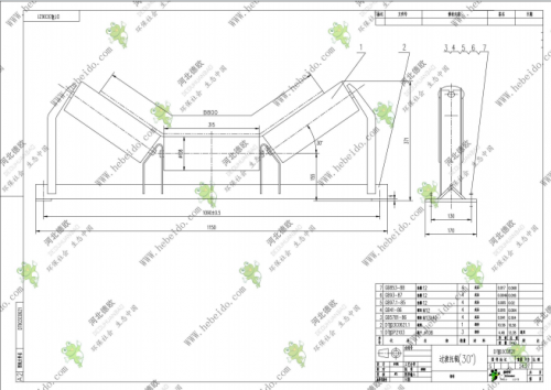
DT18前倾托辊35°
_1-2边支柱.pdf 01C03111横梁.pdf 01C0311槽形前
DT19过渡托辊10°
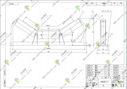
03C0411过渡托辊.pdf 03C04111横 梁.pdf 03C0422过
DT20过渡托辊20°
_1-1中支柱 .pdf 03C0521过渡托辊(20°).pdf _1
DT21过渡托辊30°
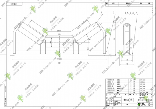
_1-1中支柱.pdf 03C0621过渡托辊(30°).pdf _1-
DT22缓冲托辊35°
_1-1中支柱.pdf 01C0711缓冲托辊(35°).pdf _1-
DT23缓冲托辊45°
_1-1中支柱.pdf 01C0811缓冲托辊 (45°).pdf _1
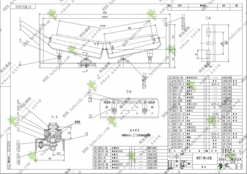
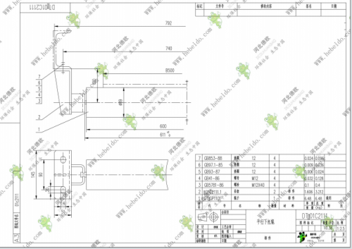
DT24磨檫上调偏托辊
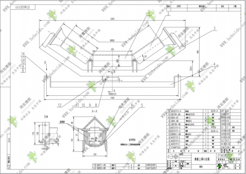
C1111_4限位板.pdf C1111摩擦上调心托辊.pdf
C1123摩擦上调心托辊
1C28113下 横 梁.pdf 132418_1辊皮.pdf 112317_1辊
3C1211锥形上调心托辊
03C43_2轴.pdf 4C1223锥形上调心托辊.pdf 3C12
DT27锥形托辊
03C43_2轴.pdf 03C431_1辊 皮.pdf 03C431辊 子.pd
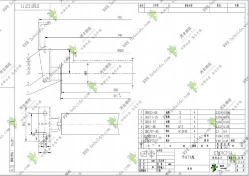
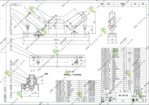
DT28平行上托辊
_1-1边支柱.pdf 1C1411平形上托辊.pdf 01C2111平
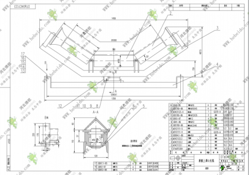
DT29平行下托辊
01C2111平行下托辊.pdf 03C2111平行下托辊.p
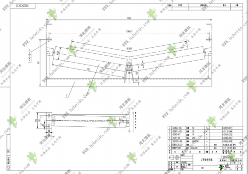
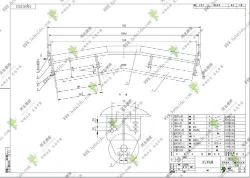
DT30下V型托辊
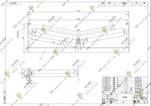
2511_1_2吊 架.pdf 2511_1-1中 支 柱.pdf 2511V形托
DT31前倾V型托辊
05C2623V形前倾托辊.pdf 05C2732V型梳形托辊
DT32反V形托辊
2923-1横 梁.pdf 2923反V形托辊.pdf 2924-1横 梁