
FU350
FU350-01-00驱动装置.pdf FU350-00-00总装图.pd
FU410
Fu410-00-00.装配总图.pdf FU410-00-01链运机总装
FU500
FU500-01-01a链 轮 罩.pdf FU500-01-02a传 动 小
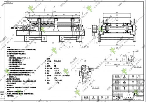
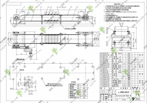
FU600
FU600-00-00.dwg链运机总装图.pdf FU600-01-01链
FU700
FU700-01-02A传 动 小 链 轮.pdf FU700-01-01链 轮
MS16
M16 尾轴.pdf M16头部端盖板.pdf M16 头部.pd
MS32
MS32-12325总图.pdf MS32 轴承座组件.pdf MS32大
MS63
MS32-12325总图.pdf MS32 轴承座组件.pdf MS32大
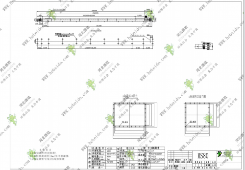
MS80
MS80X22000埋刮板输送机总图.pdf MS80侧压板
MS40
MS400-00总图.pdf MS400-01-01驱动链轮.pdf MS40
DN100
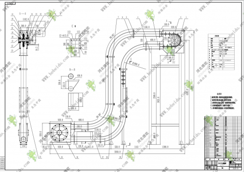
DN100圆管链输送机.pdf DN100-01.1主轮箱盖.
DN200
DN200管链输送机.pdf
DN160
DN160圆管链输送机.pdf DN160-01.1箱 盖.pdf D
BL500
BL500-00-13.6M型鳞板式输送机.pdf BL500-01b-0
BL1000
BL1000-00型鳞板式输送机.pdf BL1000-03-01长 销
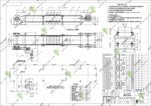
BL1200
BL1200鳞板输送机总图1.pdf BL1200-02-01-01脚
BL1800
BL1800X3.5总图(对内确认).pdf WBL1800X3.5·1-2尾
260x260 卸料器
260x260 卸料器.pdf